About the Property
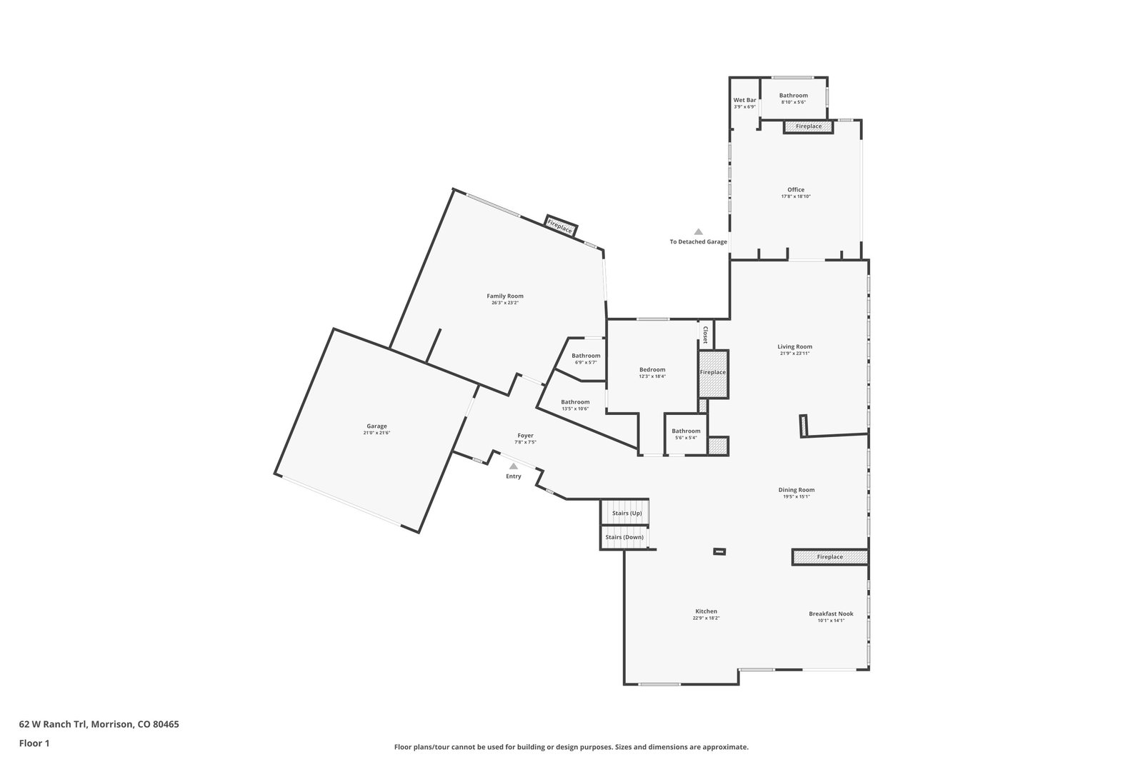
Set upon expansive acreage in a secluded gated mountain sanctuary known as West Ranch, this extraordinary estate captivates with breathtaking Colorado views. Originally constructed in 1977 by a Denver Broncos player, this residence is special in every sense of the word. It has undergone several renovations to maintain its luxurious appeal while preserving its unique character. The 7,285 square feet of impeccably designed living space is enhanced by extensive decks, providing unparalleled mountain viewing and sophisticated entertaining opportunities. The open floor plan floods the home with natural light through expansive windows framing stunning views. The gourmet kitchen boasts alder cabinetry, quartz countertops, a gleaming tile backsplash, premium appliances, and eye-catching light fixtures. Wood flooring flows throughout the main level, encompassing a custom office, television room, hearth room, and dining area. The upper level houses a magnificent primary suite with private deck for capturing panoramic views, plus an additional spacious bedroom with full bathroom. Multiple fireplaces create inviting ambiance throughout the residence, while the finished basement offers a kitchenette, recreation room with fireplace, and remarkable walk-in wine cellar. Outdoor entertainment flourishes on the walkout basement patio featuring grilling areas, water features, and gas fire pit. The impeccably kept grounds feature lush landscaping, a flat backyard lawn, and a central courtyard with vibrant plantings that evoke an enchanting English garden. Equestrians will appreciate the three-stall barn with paddock area, perfectly blended with mountain living. With 1,250 acres and just 52 home-sites, surrounded by 500 acres of preserved open space, this remarkable community prioritizes environmental stewardship, wildlife preservation, and beauty while maintaining exceptional privacy and security. You'll enjoy unparalleled mountain tranquility while finding convenience to amenities.