About the Property
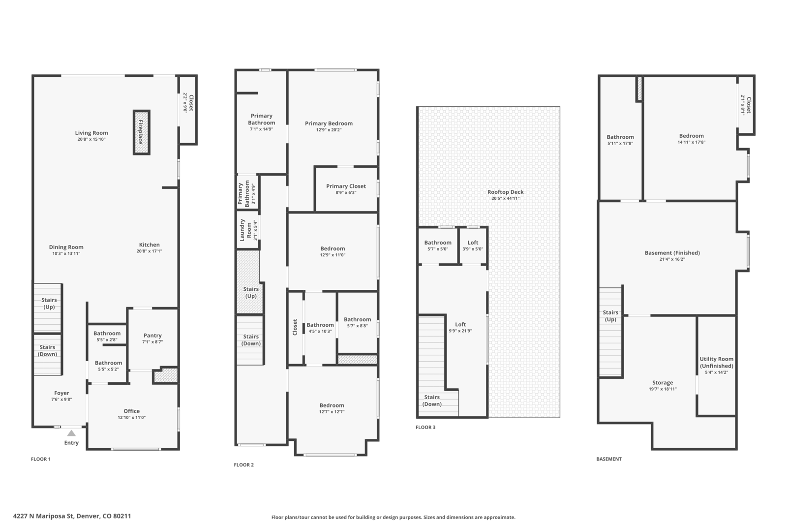
Close to public transit, minutes from highway access and LoHi, this Sunnyside duplex offers the ultimate in location, lifestyle, and layout. With an oversized, fully fenced yard that wraps around the entire north side of the property and bedrooms on every level, this property is perfectly suited for both everyday living and entertaining. Step inside to find a flexible, sunny east-facing main-floor bedroom or office space with its own ensuite bath—ideal for guests or remote work. The heart of the home features an open-concept kitchen with an eat-in dining area, coffee bar nook, oversized walk-in pantry, and a cozy living room with gas fireplace. Slide open the doors to the back patio and enjoy seamless indoor-outdoor living and al fresco dining in your expansive wrap-around yard with an over-sized two-car garage. Upstairs, three well-appointed bedrooms include a primary suite tucked quietly in the back, featuring a spacious walk-in closet and a luxurious five-piece ensuite. Two additional bedrooms share a functional Jack-and-Jill bath, and a second-floor laundry room adds convenience to the everyday routine. The third-floor loft is ripe for entertainment with a wet bar, powder room, and access to an expansive rooftop deck—perfect for relaxing or hosting with a view. Downstairs, the finished basement offers a large rec room for movie nights, oversized full bath with walk-in shower, and a generously sized bedroom—ideal for overnight guests. With its unbeatable location just blocks from a transit station and quick access to major routes, this home truly is a commuter’s dream—offering space, flexibility, and style in one of the city’s most sought-after neighborhoods.